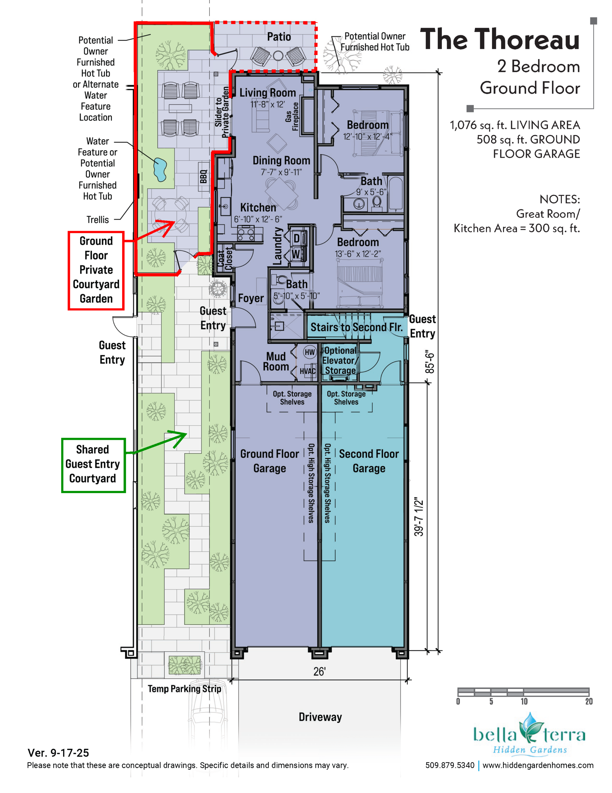
Thoreau Ground Floor Townhome
The 1,076 SF Ground Floor Thoreau townhome is thoughtfully designed with a highly efficient layout that lives larger than its size. This ground floor home provides full functionality in a compact floor plan. The stepless single-level entry is ideal for downsizing, a lock-and-leave lifestyle, or first-time buyers seeking a well-designed smaller home.
A defining feature of the home is the spectacular private Courtyard Garden, reserved exclusively for the ground-floor resident.
Ground Floor Townhome Features
- 2 Bedroom | 2 bathrooms – Primary bedroom with en-suite bath, Second bedroom has private access to the second bath
- Stepless Entry
- A modern linear gas fireplace offers cozy ambiance in the Great Room. Stylishly and functionally designed with a tile or ledgestone surround, mantle with space above for a TV and adjacent floating display shelves.
- Private Courtyard Garden:
- The Great Room sliding door opens into a beautiful, secluded, private courtyard garden for true indoor / outdoor living. It includes a water feature, hardscape, landscaping, garden lighting, a gas barbeque/firepit connection, and wiring if you want to add a hot tub.
- Window placement for all homes has been meticulously designed by shape and placement to protect the privacy of each homeowner.
- The Private Courtyard Garden is fenced for privacy with access gates at both ends.
- The Great Room sliding door opens into a beautiful, secluded, private courtyard garden for true indoor / outdoor living. It includes a water feature, hardscape, landscaping, garden lighting, a gas barbeque/firepit connection, and wiring if you want to add a hot tub.
Common Design Features of both the Ground Floor & Second Floor Homes
- Base price includes high end finishes/appliances and a gas fireplace.
- A two-car garage. Our attached tandem garage offers optional upper garage storage and an additional (3rd) parking space outside the garage is available for temporary parking.
- Superior sound proofing between floors – see below.
- Each two-story townhome building is on its own lot separated from adjacent neighbors on both sides; therefore, there are no common walls between buildings.
- Economical and environmentally friendly Heat Pump based heating and air conditioning (not mini splits).
- Generous ceiling heights of 9’-2” feet in the Ground Floor unit and 9’-2” feet in most of the Upper Floor unit with 10’-2” in the Great Room provide spacious ambiance throughout the townhomes.
Sound Proofing between Upper & Lower Homes
Soundproofing was one of our highest design priorities, thus the Thoreau floor/ceiling assembly between the ground and second floor units was designed by an acoustic engineer to meet the “Acoustic Separation Design Criteria” for a “Grade 1 Luxury” rating, which is the highest rating for residential units. Those standards are designed by the Federal Housing Administration and address both impact sounds (like footsteps) and sounds transmitted through the air (like music or voices). The ceiling/floor assembly design rating of our design exceeds the standard for Grade 1 Luxury by a comfortable margin. In addition, the units include an engineered, acoustically separated stairway wall.